Videre til indhold
Planer og priser
FAQ
Planer og priser
FAQ
Klik her
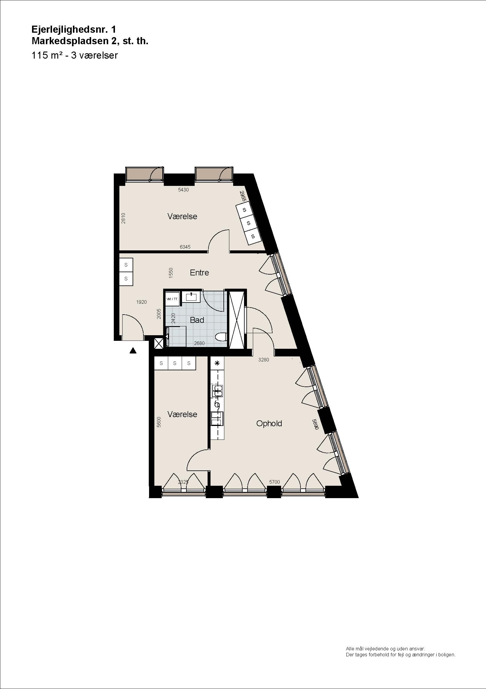
Markedspladsen 2, st. th.
Status:
Ledig
Ledig fra:
01/03/2026
Adresse:
Markedspladsen 2, st. th.
Husleje pr. måned
14300 kr.
Aconto forbrug:
1.250 kr.
Antal værelser:
3
Antal m2:
115
Sagsnummer:
152-114-1